Skip to content

Rerrin, Bere Island

Beara

  Reference: 2530

Description

Beara Estate Agents are delighted to present this unique restoration opportunity located on the stunning Bere Island, West Cork. This site offers the perfect blend of traditional heritage and modern potential, set within a vibrant offshore community.

The Vision
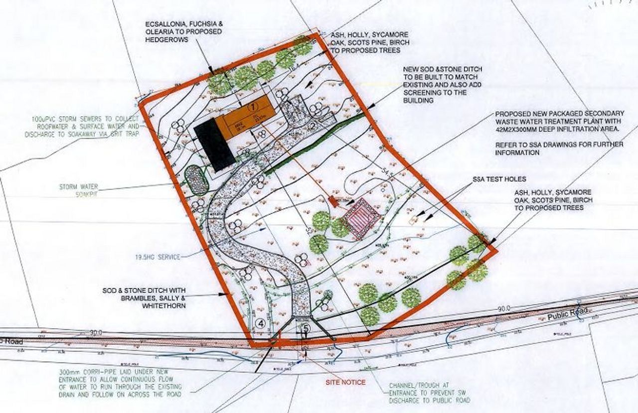
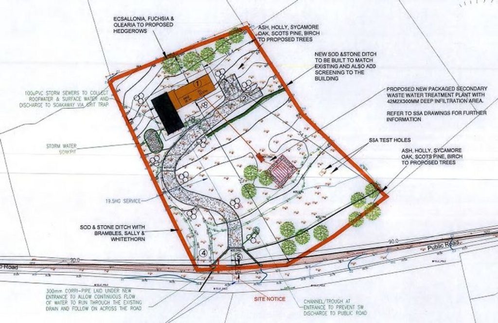
The property includes a stone ruin of approximately 37m situated on a generous c. 0.73-acre site. Full Planning Permission (FPP) has been secured for a sensitive restoration and contemporary extension (50.38m). Once completed, this will create a beautiful 87m (936 sq. ft.) home featuring:

Two well-proportioned bedrooms.

A bright, open-plan Kitchen/Dining/Living area designed for modern island living.

Unbeatable Grant Potential
This property is an ideal candidate for the Vacant Property Refurbishment Grant. Due to its location on an offshore island and its derelict status, buyers may qualify for:

Up to 84,000 in funding for derelict property restoration.

Additional Conservation Grants for expert advice on traditional farmhouse features.

SEAI Energy Upgrade Grants (can be applied for in tandem to maximize efficiency).
> This represents a significant financial head-start for any self-build or restoration enthusiast.

Location & Lifestyle
Bere Island is a “quiet paradise” nestled at the entrance to Bantry Bay. It is renowned for its:

Managed Pace: Ideal for walkers, cyclists, and nature lovers.

Thriving Community: A proactive island population with year-round amenities.

Accessibility: Regular ferry services from Castletownbere and Pontoon.

Whether you are looking for a tranquil permanent residence or a high-potential investment, this site offers a rare “ready-to-go” path to owning a piece of West Corks maritime heritage.

Key Features
Full Planning Permission in place (Restoration + Extension).

Total Floor Area: c. 87m upon completion.

Site Size: c. 0.73 Acres.

Grant Eligible: Eligible for the maximum 84,000 Island Derelict Grant.

Views: Situated in a scenic coastal environment.

Services: Proximity to local infrastructure for ease of connection.

Features

BER Details






Contact JJ Beara

Please enter your name.
Please enter a subject.
Please enter a valid phone number.
Please enter a message.

Location

JJ O'Sullivan - Beara Estate Agents
Privacy Overview

This website uses cookies so that we can provide you with the best user experience possible. Cookie information is stored in your browser and performs functions such as recognising you when you return to our website and helping our team to understand which sections of the website you find most interesting and useful.